1-к, Молодежный проезд, 17 Показать на карте
Мурманск
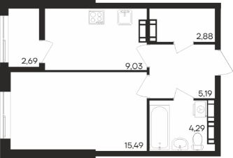
Продаётся 1-комнатная квартира в строящемся доме (Дом 17), срок сдачи: IV-кв. 2026, общей площадью 39.57 кв.м., на 16 этаже. Мурманск называют ''Воротами в Арктику''. Здесь можно узнать, как устроен первый в мире атомный ледокол, насладиться красотами неповторимой природы - видами на Северный Ледовитый океан, озерами, дикими тундрами, живописными горами и завораживающим северным сиянием ЖК ''Северное сияние'' - идеальное место для тех, кто хочет жить в уютном и современном районе, наслаждаясь всеми преимуществами комфортной жизни. Два монолитно-каркасных 16-этажных дома выполнены в современном стиле. Архитектура жилого комплекса органично вписана в городской ландшафт. Здесь тщательно продумана планировка каждой квартиры: популярные студии,эргономичные однокомнатные,функциональные двухкомнатные,двухкомнатные квартиры евро-формата.В ЖК ''Северное сияние'' предусмотрено всё для Вашего комфорта: уютные, благоустроенные дворы без машин,современная детская площадка,спортивная площадка,ландшафтное озеленение,места отдыха,в каждом доме предусмотрено по два просторных бесшумных лифта,помещения для хранения колясок, санок и велосипедов жильцов,удобные парковочные пространства, в том числе наземная двухуровневая автостоянка открытого типа.На первом этаже одного из домов в коммерческих помещениях разместятся кофейни, продуктовые магазины, аптеки и другие объекты торговли и услуг. В шаговой доступности находится всё необходимое для комфортной жизни: остановки общественного транспортапродуктовые магазиныаптекидетские садышколыспортивная школадосуговые центрыЖилой комплекс ''Северное сияние'' расположен в активном районе города с хорошо развитой инфраструктурой и удобной транспортной развязкой. Расстояние на автомобиле от жилого комплекса ''Северное сияние'' до: аэропорта (30 мин) - 30 кмжелезнодорожного вокзала (15 мин) - 5,3 кмКольского моста (16 мин) - 5,9 кмМурманск Молла (10 мин) - 4 кмМорского вокзала - (20 мин) - 6,4 кмТоргового порта - (20 мин) - 6,1 кмЖилой комплекс ''Северное сияние'' - новое современное пространство для жизни от надежного застройщика. Безусловно достойная жизнь. Работаем по ФЗ-214 с использованием эскроу-счетов - 100% гарантия сохранности средств дольщиков. Доступна ипотека, рассрочка, использование маткапитала.
39 м2
16 / 16 этаж
Монолит
- Показать контакты
- Добавить в избранное
39 м2
16 / 16 этаж
Монолит
6 133 350
155 000 /м2
Новостройка,
IV-2026
IV-2026
