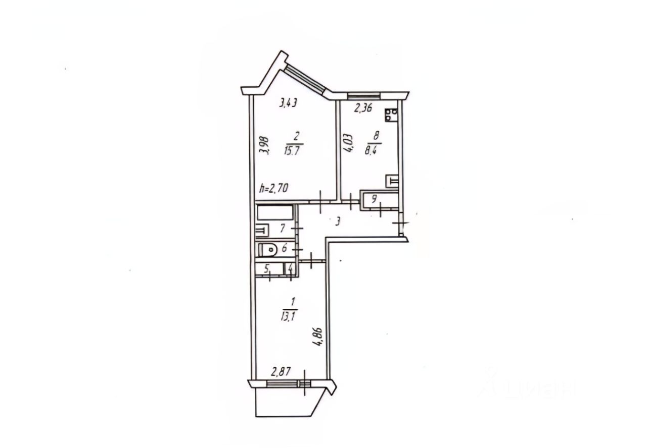
Продаётся квартира Североморский проект в тихом спальном районе города. Рядом находятся школа, д/сад, магазины, остановка общественного транспорта. Квартира свободна, прямая продажа, ни кто не прописан. Комнаты раздельные, заменины окна, балкон застеклён, подводка поменена, пол линолеум на кухне кафель. торг.